![[KAIA]](https://admin.squareone.com.cy/media/project/hero/V1-R1_TMpHBjR_hero_SStGoeq.webp)
[KAIA]
Residences
Project Description
[ KAIA RESIDENCES ]
Situated in a well-positioned and emerging residential area, KAIA Residences is a contemporary development offering a refined collection of 1 and 2 bedroom apartments. Designed with efficient layouts, and modern living standards, the project provides an ideal setting for both homeowners and investors seeking quality and comfort.
Located within easy reach of key transport links and everyday amenities, residents benefit from convenient access to shopping areas, schools, business districts, and nearby leisure destinations. The location combines urban accessibility with a calm residential atmosphere, creating a balanced lifestyle environment.
KAIA Residences is thoughtfully planned to maximize functionality and natural light, while maintaining a sense of privacy and ease. With its strategic positioning and modern design approach, the development represents a smart opportunity for contemporary living and long-term value in a growing neighborhood.
- Property Type
- Residential
- Location
- Germasogeia Get Directions
- Status
- Off Plan
- Expected Completion Date
- July 31, 2028
- Energy Efficiency
- Grade A
Project Gallery
![[KAIA] render image 1](https://admin.squareone.com.cy/media/project_renders/V2-R1.webp)
![[KAIA] render image 2](https://admin.squareone.com.cy/media/project_renders/V1-R1.webp)
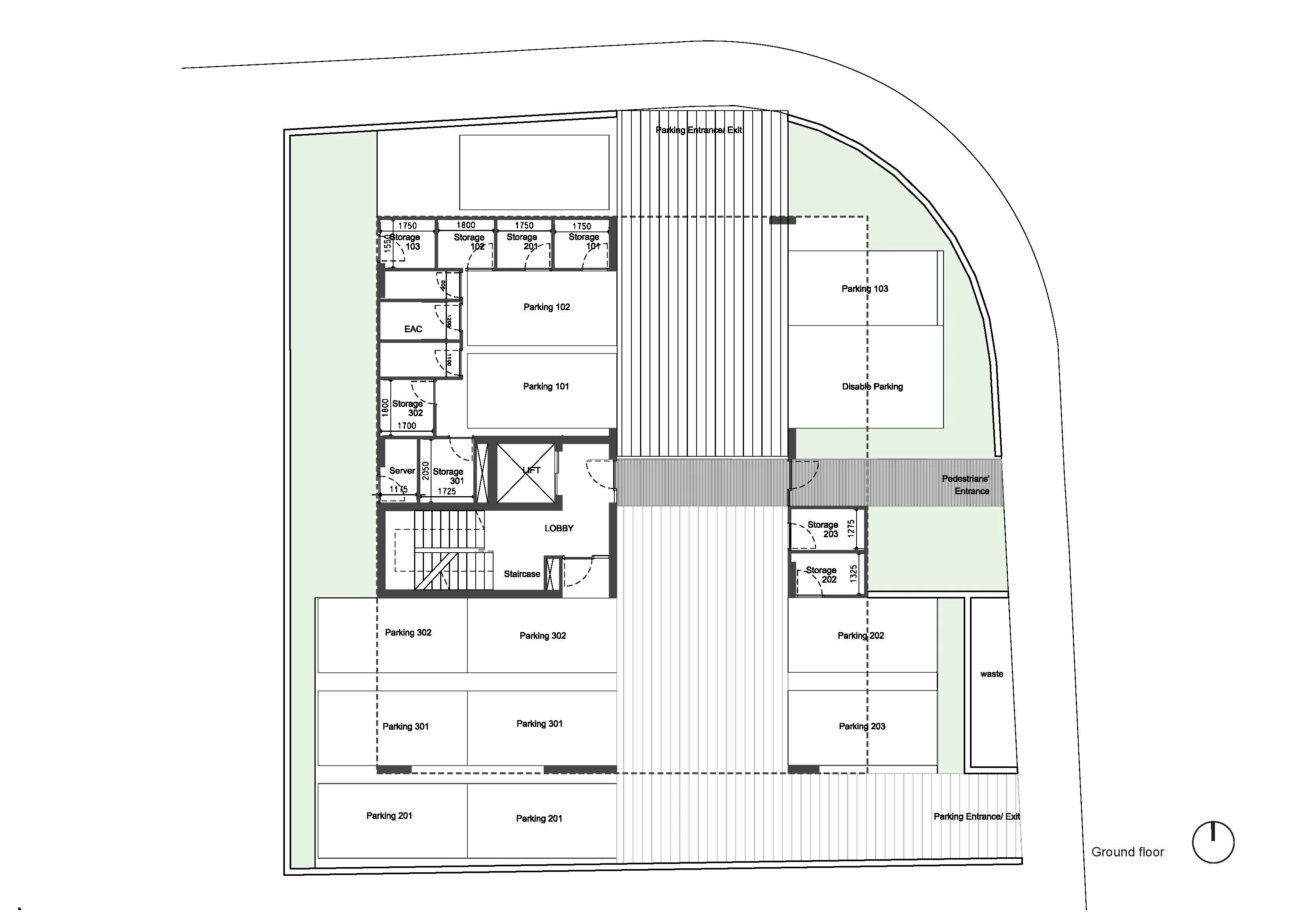
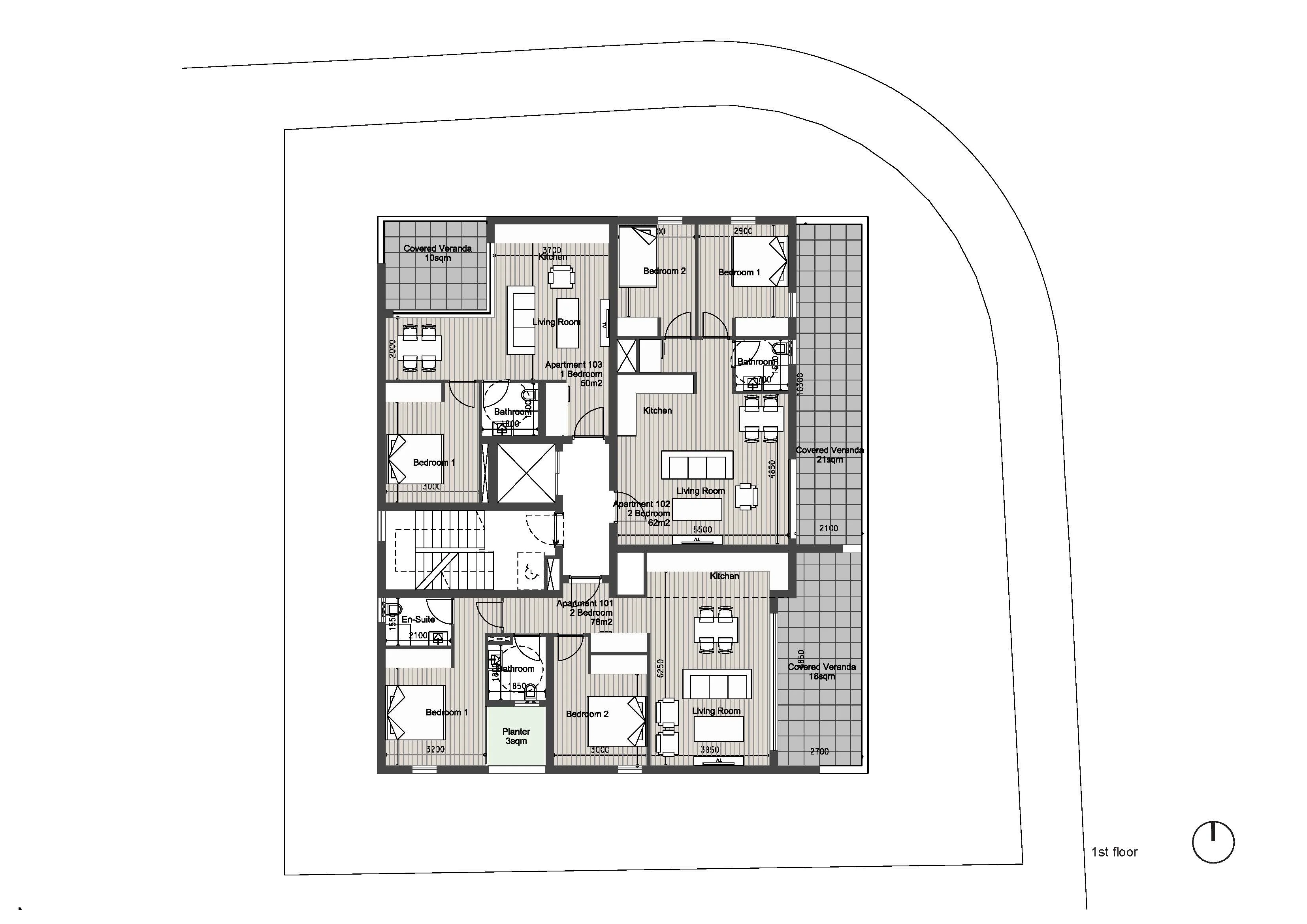
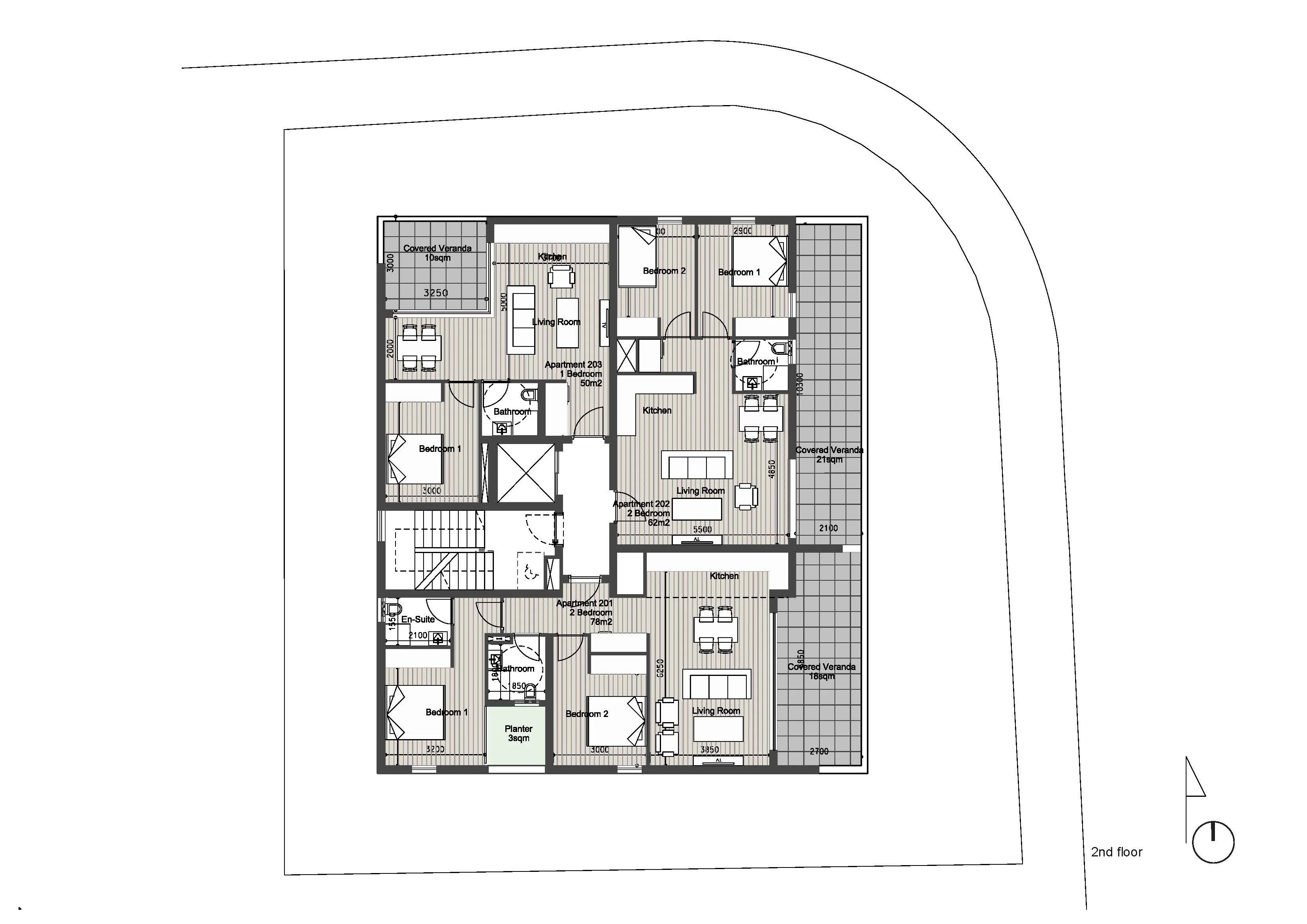
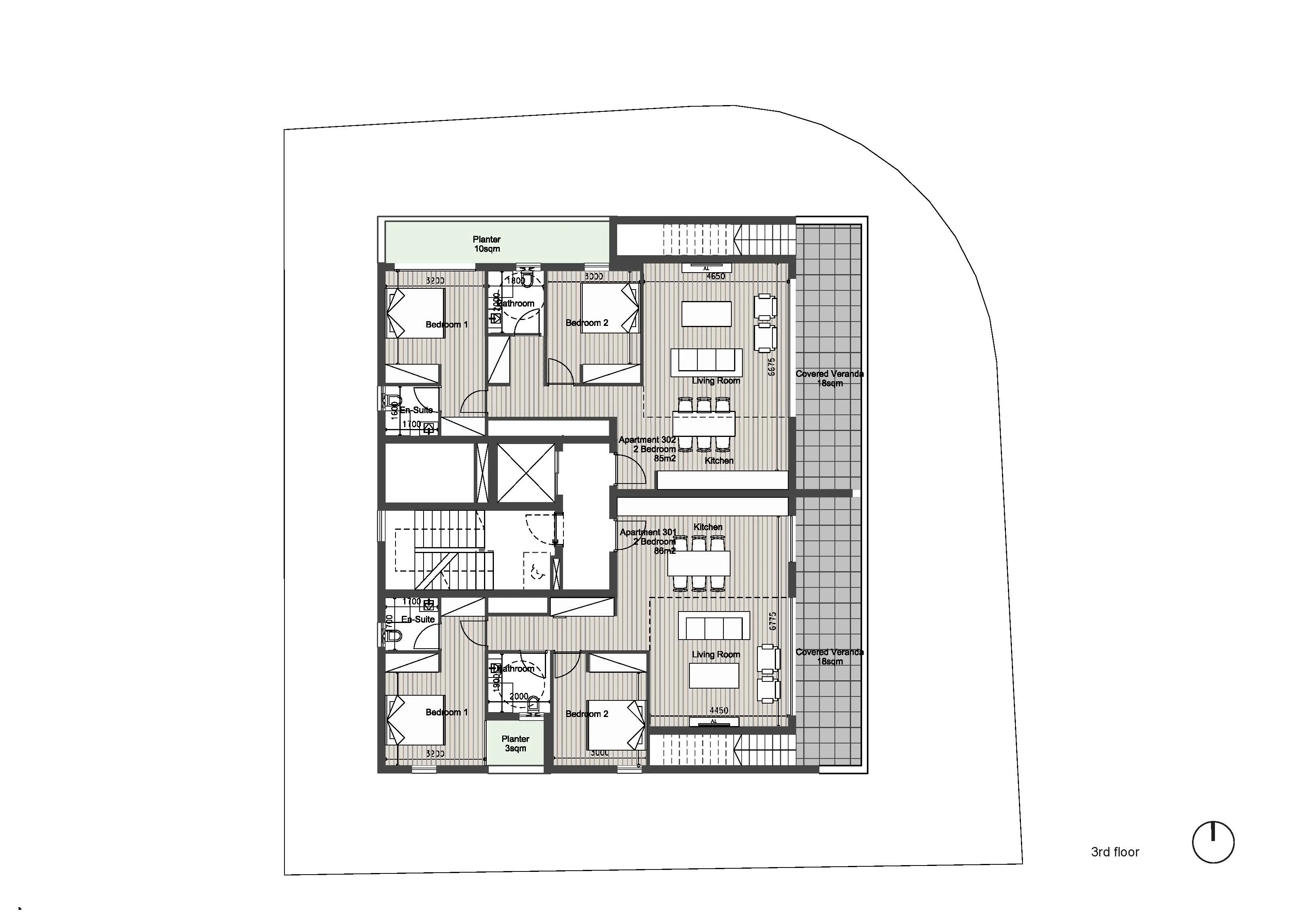
Floor Plans
Project Schedule Of Areas
| Status | Reference | Type | Floor | Bedrooms | Bathrooms | Pool | Covered m² | Total Area | |||||||||
|---|---|---|---|---|---|---|---|---|---|---|---|---|---|---|---|---|---|
Loading units... | |||||||||||||||||
Are you a partner? Sign in
Project Location
Get DirectionsLearn More
For inquiries, please leave us your details.













